Skip to main content

The Studio ADU:

Compact, Efficient, and Full of Potential

Your Backyard, Your Options

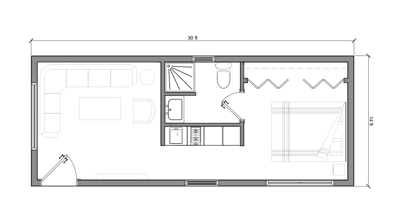
Maximize your backyard’s potential with the Studio ADU by Connest —a smart, space-efficient solution designed for modern living. At 420 sqft , this compact yet versatile unit is perfect for rental income, a home office, or a private retreat.

Built with 100% steel frames , our Studio ADU is fire-resistant, durable, and energy-efficient, ensuring safety and sustainability without compromising style.

Studio ADU

Fast, Durable, and Ready to Go

The Connest Studio ADU is a compact, efficient solution built 3x faster than traditional construction. Designed for quick installation with minimal site disruption, it’s perfect for rental income, guest housing, or extra living space.

Features:

  • 100% Steel Structure: Fire-resistant and built to last.
  • HCD Certified: California-approved for a hassle-free process.
  • Title 24 Compliant: Energy-efficient for lower utility costs.
  • Fresh-Air & Ventilation Systems: Better air quality.
  • Full Kitchen: Includes cooktop, sink, and storage.
  • One Bedroom with Closet & Full Bath: Compact comfort.
  • Air Conditioning & Water Heater: Ready for immediate use.
  • Fire Alarm & Sprinklers: Safety built in.

Studio ADU – Fast, Durable, and Ready to Go

The Connest Studio ADU is a compact, efficient solution built 3x faster than traditional construction. Designed for quick installation with minimal site disruption, it’s perfect for rental income, guest housing, or extra living space.

Features:

  • 100% Steel Structure: Fire-resistant and built to last.
  • HCD Certified: California-approved for a hassle-free process.
  • Title 24 Compliant: Energy-efficient for lower utility costs.
  • Fresh-Air & Ventilation Systems: Better air quality.
  • Full Kitchen: Includes cooktop, sink, and storage.
  • One Bedroom with Closet & Full Bath: Compact comfort.
  • Air Conditioning & Water Heater: Ready for immediate use.
  • Fire Alarm & Sprinklers: Safety built in.

Studio ADU:

Compact, Efficient, and Full of Potential

Why Connest?

  • Move-in Ready in 12 Weeks

  • Quick, Clean Installation

  • Durable, Low-Maintenance Design

Why Connest?

  • Move-in Ready in 12 Weeks
  • Quick, Clean Installation
  • Durable, Low-Maintenance Design

VIRTUAL 360° TOUR

Step inside and explore every corner in stunning detail.

No Hidden Fees.

Just the Real Cost.

Price Breakdown for

Studio ADU

At CONNEST, transparency is at the core of what we do. No hidden fees, no surprise costs—just a clear breakdown of what goes into building your studio ADU.

From permitting to sitework and logistics, we’ve laid it all out so you know exactly where your money goes. Fast, simple, and straightforward—because time is money.

ADU Price Calculator
Our pricing is transparent and upfront, covering everything from permitting to installation—with no hidden fees or markups.
Please choose an option☝️!
Please choose an option☝️!
Please choose an option☝️!
Please choose an option☝️!
Please choose an option☝️!

Total 0

Starting From

$399,000 or $1,879/month

We take the guesswork out of your project by handling all the research and pricing forecasts. Our pricing is transparent and comprehensive, with upfront costs that cover everything from permitting to installation and assembly. You can rest assured there are no hidden fees.

Financing Options

Financing is key to building an ADU, and we offer loan options through our lending partners to suit your needs. They’ll guide you through the process to find the best loan for your project. For more details, feel free to contact us.

We’re here to help!

Average Price of Premium Models

Typically our customers will add another $x for our premium line

Learn More

Taxes and Fees

Please note we do not include sales tax and permit fees in our base price, which can average around $20,000. These fees vary significantly depending on the city and county.

Contact Us

Choose the ADU That Fits Your Vision

Quality at Every Level. Options to Match Your Needs.

Your ADU should reflect your goals, budget, and style. Whether you’re looking for a cost-effective living space or a high-end rental unit, Connest offers two tailored options—both built with 100% steel-frame construction for durability and efficiency.

Standard Tier

Smart, Affordable, Built to Last

  • Durable materials designed for long-term reliability
  • Essential finishes with a modern, practical aesthetic
  • Cost-effective without sacrificing quality
  • Fast installation with minimal maintenance

Designed for Practicality

The Standard Tier Studio ADU provides a functional and efficient living space, offering all the essentials without excess. Durable flooring, streamlined cabinetry, and efficient appliances create a home that’s simple, smart, and easy to maintain.

Perfect for: Homeowners seeking affordable, fast, and reliable housing solutions.

Premium Tier

Elevated Design, Superior Comfort

  • High-end finishes for a polished, sophisticated look
  • Luxury flooring and designer lighting for a refined atmosphere
  • Premium fixtures & appliances for a modern, high-performance home
  • Maximized rental value with upscale appeal

Designed for a Higher Standard

The Premium Tier Studio ADU brings refined elegance into compact living. With luxury materials, upgraded cabinetry, and modern fixtures, every detail is designed to create an enhanced living experience that feels anything but standard.

Perfect for: Investors & homeowners looking to maximize rental income or enjoy a premium modular home.

How Much Does an ADU Cost?

How long does it take to build an ADU?

What can I Build in my city?

Can I build an ADU on my property?

Why build an ADU as an investment?

How do I finance my ADU?

Move in 3X Faster!

Ready to Turn Your Backyard Into an Opportunity?

Don't just dream about the possibilities—take action. Whether you're looking to create rental income, house a loved one, or make a smart investment, Connest is here to guide you every step of the way.

What You Can Expect:

  • Personalized Consultation: Speak directly with our ADU experts.
  • Tailored Solutions: Get advice specific to your property and goals.
  • No Obligations: Just clear, straightforward answers to your questions.

Book Your Consultation Today and discover how fast and easy it can be to bring your ADU vision to life.

Make the first move. Your new opportunity is just a call away.

Come Visit

Calle Monte Ararat
10502-Modulo 2-B,
Lomas de la Presa, 22125
Tijuana, B.C. México

Contact Us

+216 (0)40 3629 4753
info@connest.com